代表写真

夫婦でアットホームな
雰囲気でやってます。
Profileへどうぞ

一級建築士事務所 KANO空感設計 KANo cooKAN design

〒444-2117   愛知県
岡崎市百々西町 13-13

TEL  0564-26-3051
FAX 0564-26-3059

住宅・集合住宅・別荘
店舗・事務所・医院等
企 画・設 計・監 理

House / 住宅

和みの家 -みんなが集まる家-   

/豊川市御油町

 旧東海道御油宿沿いに建つ母屋への増築

 ・ 打上げ花火を楽しめる2階リビングにつながる屋上テラス

                    敷地面積    327.27u(98.99坪)
                    建築面積     72.04u(21.74坪)
                    延床面積    113.86u(34.37坪)
                    (増築部分)

外観模型 南から

 

外観模型 南から外観模型 東から外観模型 ルーフテラス

 

平面図 1階

 1F

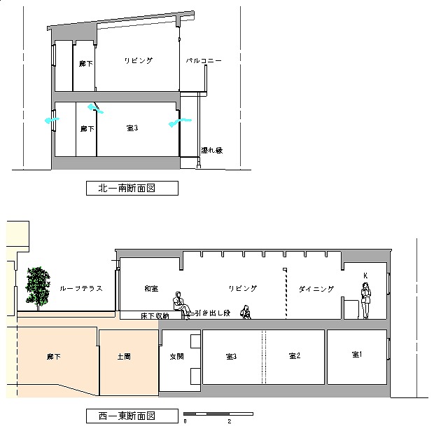
断面図 北-南
平面図 2階ライフシーン1平面図 2階ライフシーン2平面図 2階ライフシーン3

 断面図                    2F ライフシーン

ご家族
設計ポイント
  • ご夫婦と息子さん(子供もう一人予定あり)
  • かつての御油宿のように人が集まりやすいです。明るく、
  • 母屋のご主人のお母様とは生活は別
  •    広々と開放的な空間で和める、安心とやすらぎの家です。
     
  • お母様との「つかず離れず」のいい関係を築きます。
  • 主なご要望
  • 南に建物があるので、日当たりがよく、明るくしたい
  • LDKや水廻りを2階に、個室を1階にした逆転プランです。
  • 母屋と共用の納戸や土間でつなぐが、玄関は別にほしい
  • 長いアプローチを木の目隠し塀とパーゴラ、床舗装で演出。
  • アプローチが母屋の脇になるので工夫してほしい
  • 木のぬくもりの雰囲気が好き
  • 内部に梁を現し、外部にも手摺や塀に木を使いました。
  • 野球仲間など来客が集まりやすいように
  • LDKと一体になる続き和室を小上がりにし、ルーフテラスを設
  • 御油の花火を見られるようなバルコニーがほしい
  •    ました。Lに食卓、和室に座卓を置いてつなげられます。
  • 来客時にはDKとLを仕切ってそれぞれ使いたい
  • Dから洗面室、廊下へ抜ける回遊動線を設けました。
  • 家事や書斎のスペースがほしい
  • ダイニングに共用スペースとして設け、子供の勉強机にも。
  • 母と奥様の使う物干し場を分けたい
  • お母様は庭に下りずに物干テラスへ、奥様はバルコニーへ。
  •  
    敷地条件
     
  • 旧東海道御油宿沿いに建つ母屋隣の建物を壊しての増築
  • 母屋とは1階でつながり、2階では離し、南から光を入れます。
  • 間口が狭く、奥行きが深い敷地で北方位が東へ45度傾き
  • 南北に細長い建物で東全面バルコニーとしました。
  • 北は駐車場(将来未定)、南は2階建て住宅