ヒーリング・ビューティー・ワールド -心を癒す美の世界-
/豊田
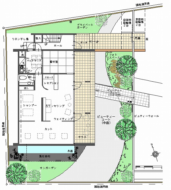
2階に住宅を併設した新規開業の美容サロン
・ ゲートデザインが「美の出入口」、中庭が「美の世界」を創出
敷地面積 751.05u(227.19坪)
建築面積 109.31u(33.06坪)
延床面積 167.24u(50.59坪)
|
|
| 放的でシンプルなヒーリング・ビューティー・ワールドを創出。 | |
|
|
| 信頼され、ほっと心を癒す居心地のいい美容室にしたい | 居心地のいい「時間」をすごすことに癒しを感じます。 |
| 光や緑や風、水などの「自然」は心を癒す根源的なものです。 | |
|
|

